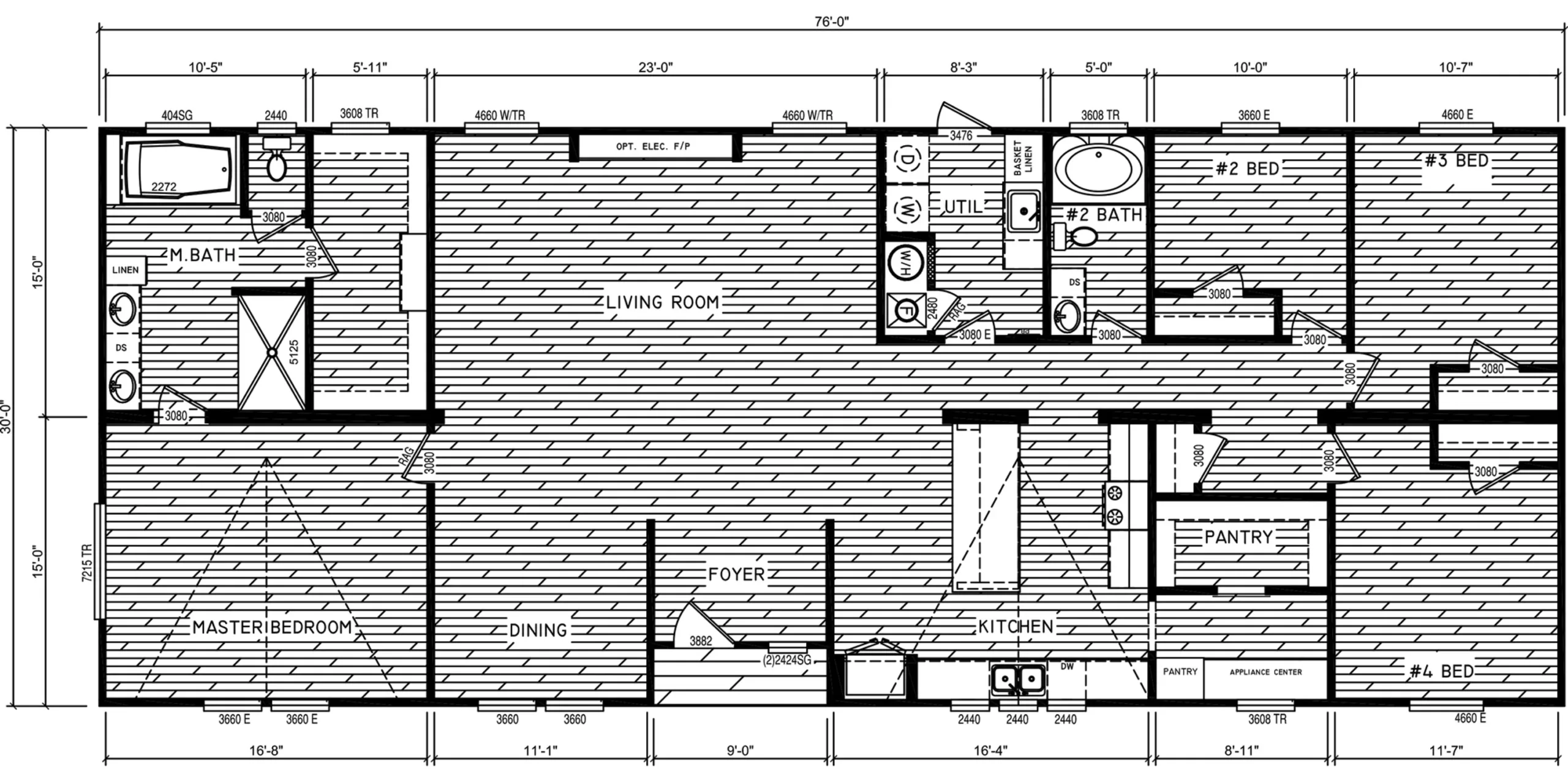
CS-3229 Willow Oak CS-3229 Willow OakTimber Creek Housing 3 Bedrooms | 2 Bathrooms | 1,980 Square Feet Request a QuoteGalleryRequest More Information Name(Required)Email(Required)Phone(Required)BedroomsBathroomsMessage(Required)20+4= 24avery2026-04-14T18:56:25+00:00